Location appartement T2 meublé proche transports à Vénissieux entre particuliers
Le mot du propriétaire
Je met en location meublé un appartement T2 situé en centre ville de Vénissieux Rue Alfred Dreyfus. Il est porche du lycée Jacques Brel et Hôtel de Ville.
Il est donc desservi par le tram T4, arrêt situé face à la résidence. Il est proche de l'ensemble des commerces et commodités, proche futur tram T10 et métro C / gare SNCF de Vénissieux.
Résidence calme et sécurisée. Appartement situé au 4éme étage sur 5 avec ascenseur. Stationnement gratuit à proximité, possibilité de louer des garages aux alentours. Local Vélo à disposition au sein de la résidence.
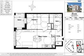
Appartement de Type 2 de 44,53 m2 avec un balcon de 5m2 :
- Chambre de 11,93 m2 avec lit Nordi Ikea ( rangements tiroirs sous le lit) et matelas Emma 140x200 cm, placard intégré et petits meubles de rangement. Couette, protège matelas fournis.
- Salon et cuisine équipée de 22,76 m2 : salon avec canapé 2 places type Kivik, éléments de décoration, meuble TV type Kallax avec rangements et buffet. Cuisine équipée avec hotte, plaque induction, four, réfrigérateur-congélateur, ustensiles, ménagères et accessoires fournis.
- Salle de bain de 5,68 m2 avec baignoire, meuble vasque et miroir, porte serviette, toilette et une machine à laver Electrolux 7Kg.
- Entrée de 4,16 m2 avec meuble à chaussures et tiroir, placard d'entrée intégrée, miroir.
- Balcon de 5,02 m2 avec revêtement en teck, prise mural, lampe extérieur. Loyer de 800 € et 75 € de charges (charges de copropriété, taxes d'ordures, entretien chaudière,...) soit un montant total de 875 € charges comprises.
Dépôt de garantie de 1600 € auprès de Gapaylo.
Diagnostic Immobilier, DPE Note C (sera fourni) Montant estimé des dépenses annuelles d'énergie pour un usage standard : entre 390 € et 560 €par an. Prix moyens des énergies indexés sur l'année 2021 (abonnements compris).
À propos du prix
Loyer (charges comprises)
Charges locatives
Montant du dépôt de garantie
Honoraires
Frais d'agence estimés pour un appartement d’une surface moyenne (45 m²) dans votre zone de recherche.
Ces honoraires correspondent à maximum 13 € du mètre carré (état des lieux inclus) tel que défini dans la loi Alur.
Les + de cette location
Découvrez votre quartier
Vénissieux (69200)
Diagnostic de Performance Énergétique
Diagnostic de Performance Énergétique : C
Le Diagnostic de Performance Énergétique (DPE) indique la consommation d'énergie d'un logement et son impact en termes d'émissions de gaz à effet de serre.
La note va de A (logement très économe) à G (logement très énergivore).
Cette information vous aide à estimer vos futures dépenses d'énergie et l'impact environnemental du logement.
| Note | Consommation (kWh/m²/an) | Description |
|---|---|---|
| A | ≤ 70 | Logement très économe |
| B | 71 à 110 | Logement économe |
| C | 111 à 180 | Logement assez économe |
| D | 181 à 250 | Logement moyen |
| E | 251 à 330 | Logement peu économe |
| F | 331 à 420 | Logement énergivore |
| G | ≥ 421 | Logement très énergivore |
Émission de Gaz à Effet de Serre : C
L’indicateur GES (Gaz à Effet de Serre) mesure la quantité de gaz à effet de serre émise par le logement, principalement liée au chauffage, à l’eau chaude et à la production d’énergie.
La note va de A (peu d’émissions) à G (fortes émissions).
Cette information vous permet d’évaluer l’impact environnemental du logement.
| Note | Émission (kg CO²/m²/an) | Description |
|---|---|---|
| A | ≤ 6 | Faible émission de GES |
| B | 7 à 11 | Émission modérée de GES |
| C | 12 à 30 | Émission moyenne de GES |
| D | 31 à 50 | Émission assez élevée de GES |
| E | 51 à 70 | Émission élevée de GES |
| F | 71 à 100 | Émission très élevée de GES |
| G | ≥ 101 | Forte émission de GES |