Appartement T3 sans vis-à-vis à louer à Alfortville de particulier à particulier
Le mot du propriétaire
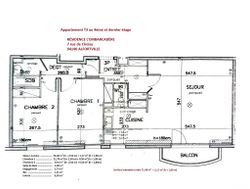
Bel appartement de 73,25 m² au sol, sans vis à vis, situé au 4ème et dernier étage d'un immeuble résidentiel offrant un maxi confort de vie à 5 mn de Paris, par les quais de Seine. Bonne isolation phonique, afin de garantir d'excellentes conditions de sommeil. Libre à la location. Ascenseur panoramique pour accéder au 4ème étage. Domaine sécurisé par grille périphérique, accès par Vigik et Digicode. Connecté fibre optique.
Transports à 5 mn : Rer D station Le Vert de Maisons, Bus 103, Autoroute A86, périphérique parisien. Ouverture de la ligne 15 sud du Métro Grand Paris Express prévue dans un an, à 5 mn.
Entrée-vestibule de 6,20 m² comprenant 2 placards, wc, porte d'accès au séjour et porte d'accès à la zone nuit via un dégagement de 2,73 m². Vaste séjour lumineux avec porte-fenêtre donnant sur un grand balcon.
Cuisine US déco blanc et rouge, avec fenêtre sur extérieur, équipée d'un bar coin repas rapide. Cuisine équipée Four, Combiné Frigo/Congel, Plaque induction, Hotte aspirante, Évier inox double bacs avec mitigeur, Lave-vaisselle. Emplacement pour Lave-linge (non fourni). Nombreux volumes de rangement et de stockage. Ensemble Séjour-cuisine de 37,57 m²
Grande chambre des parents de 12,29 m² avec placard, et fenêtre donnant sur l'extérieur et équipée d'un volet roulant.
Chambre des enfants ou bureau, de 10,41 m² avec placard, et fenêtre donnant sur l'extérieur et équipée d'un volet roulant.
Salle de Bains avec Vasque+mitigeur et Baignoire+mitigeur. Pare-douche le long de la baignoire.
Totalité des sols en véritable parquet massif chêne blond sauf carrelage dans les pièces d'eau.
Chauffage individuel par chaudière à gaz. Loyer mensuel 1425 € + provision de 165 € pour charges. En option au sous-sol, un parking pour une voiture dans box non fermé, avec accès télécommandé.
Contacter directement, Louis-Marie, le propriétaire, au tel ou par mail
À propos du prix
Loyer (charges comprises)
Charges locatives
Montant du dépôt de garantie
Honoraires
Frais d'agence estimés pour un appartement d’une surface moyenne (71 m²) dans votre zone de recherche.
Ces honoraires correspondent à maximum 15 € du mètre carré (état des lieux inclus) tel que défini dans la loi Alur.
Les + de cette location
Découvrez votre quartier
Alfortville (94140)
Diagnostic de Performance Énergétique
Diagnostic de Performance Énergétique : C
Le Diagnostic de Performance Énergétique (DPE) indique la consommation d'énergie d'un logement et son impact en termes d'émissions de gaz à effet de serre.
La note va de A (logement très économe) à G (logement très énergivore).
Cette information vous aide à estimer vos futures dépenses d'énergie et l'impact environnemental du logement.
| Note | Consommation (kWh/m²/an) | Description |
|---|---|---|
| A | ≤ 70 | Logement très économe |
| B | 71 à 110 | Logement économe |
| C | 111 à 180 | Logement assez économe |
| D | 181 à 250 | Logement moyen |
| E | 251 à 330 | Logement peu économe |
| F | 331 à 420 | Logement énergivore |
| G | ≥ 421 | Logement très énergivore |
Émission de Gaz à Effet de Serre : C
L’indicateur GES (Gaz à Effet de Serre) mesure la quantité de gaz à effet de serre émise par le logement, principalement liée au chauffage, à l’eau chaude et à la production d’énergie.
La note va de A (peu d’émissions) à G (fortes émissions).
Cette information vous permet d’évaluer l’impact environnemental du logement.
| Note | Émission (kg CO²/m²/an) | Description |
|---|---|---|
| A | ≤ 6 | Faible émission de GES |
| B | 7 à 11 | Émission modérée de GES |
| C | 12 à 30 | Émission moyenne de GES |
| D | 31 à 50 | Émission assez élevée de GES |
| E | 51 à 70 | Émission élevée de GES |
| F | 71 à 100 | Émission très élevée de GES |
| G | ≥ 101 | Forte émission de GES |