Location appartement T3 à Trévoux
Description de l'appartement
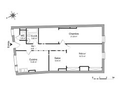
A louer, 3 RUE MONTSEC. Situé en plein centre de Trévoux, cet appartement T2 au deuxième étage, spacieux offre un cadre de vie agréable et fonctionnel, à proximité immédiate de l?ensemble des commerces, services et transports. Il se compose d?un hall d?entrée desservant une cuisine, d?un séjour lumineux avec alcôve, d?une chambre avec alcôve, ainsi que d?une salle de bains avec WC. Son agencement optimisé permet de bénéficier de beaux volumes et d?une circulation fluide entre les espaces. Le logement est équipé d?un chauffage individuel au gaz de ville, garantissant confort et maîtrise de la consommation énergétique. Son emplacement central constitue un atout majeur pour profiter pleinement de la vie de quartier tout en bénéficiant d?un cadre de vie pratique et convivial. Disponible le 05/04? Disponible rapidement ? contactez-nous pour organiser une visite.
À propos du prix
Loyer (charges comprises)
Frais d'agence estimés pour un appartement d’une surface moyenne (73 m²) dans votre zone de recherche.
Ces honoraires correspondent à maximum 13 € du mètre carré (état des lieux inclus) tel que défini dans la loi Alur.
Découvrez votre quartier
Trévoux (01600)
Diagnostic de Performance Énergétique
Diagnostic de Performance Énergétique : D
Le Diagnostic de Performance Énergétique (DPE) indique la consommation d'énergie d'un logement et son impact en termes d'émissions de gaz à effet de serre.
La note va de A (logement très économe) à G (logement très énergivore).
Cette information vous aide à estimer vos futures dépenses d'énergie et l'impact environnemental du logement.
| Note | Consommation (kWh/m²/an) | Description |
|---|---|---|
| A | ≤ 70 | Logement très économe |
| B | 71 à 110 | Logement économe |
| C | 111 à 180 | Logement assez économe |
| D | 181 à 250 | Logement moyen |
| E | 251 à 330 | Logement peu économe |
| F | 331 à 420 | Logement énergivore |
| G | ≥ 421 | Logement très énergivore |
Émission de Gaz à Effet de Serre : NA
L’indicateur GES (Gaz à Effet de Serre) mesure la quantité de gaz à effet de serre émise par le logement, principalement liée au chauffage, à l’eau chaude et à la production d’énergie.
La note va de A (peu d’émissions) à G (fortes émissions).
Cette information vous permet d’évaluer l’impact environnemental du logement.
| Note | Émission (kg CO²/m²/an) | Description |
|---|---|---|
| A | ≤ 6 | Faible émission de GES |
| B | 7 à 11 | Émission modérée de GES |
| C | 12 à 30 | Émission moyenne de GES |
| D | 31 à 50 | Émission assez élevée de GES |
| E | 51 à 70 | Émission élevée de GES |
| F | 71 à 100 | Émission très élevée de GES |
| G | ≥ 101 | Forte émission de GES |