Location appartement T3 à Cognac
Description de l'appartement
Loyer : 790 € par mois charges comprises
Loyer de base : 770 € - 40 € par mois de provision pour charges - régularisation annuelle Dépôt de garantie : 770 € Honoraires charge locataire : 290 € TTC À louer - Appartement T3 lumineux en plein centre-ville (Rue du Clos - Cognac)
Idéalement situé en coeur de ville, découvrez ce bel appartement T3 au 2? étage d'un immeuble (sans ascenseur), offrant un cadre de vie pratique et agréable à proximité immédiate de toutes les commodités.
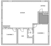
Il se compose de :
- Une entrée avec placard, pratique pour le rangement
- Un spacieux séjour baigné de lumière avec cuisine ouverte, aménagée et équipée
- Deux chambres confortables
- Une salle d'eau
- Un WC indépendant
Stationnement facile et gratuit dans la rue.
? Les + : emplacement central, belle pièce de vie, logement fonctionnel et prêt à vivre.
À noter : pas d'extérieur.
LOYER HORS CHARGES : 770 € / mois
Provisions sur charges* : 20 € / mois
SOIT UN LOYER CC : 790 € / mois
*Les provisions sur charges comprennent : la taxe d'enlèvement des ordures ménagère, l'entretien et l'électricité des communs.
/! État des lieux :
L'état des lieux d'entrée et de sortie sera réalisé par un huissier de justice.
Les frais s'élèvent à 300 €, partagés à moitié entre le propriétaire et le locataire, à régler à l'entrée et à la sortie
Dépôt de garantie : 770 €
Honoraires agence à la charge du locataire : 289.60 €
IMPORTANT :
Cher(s) client(s) : Inutile d'aller déranger le propriétaire !
Celui-ci m'a sollicité pour le travail de commercialisation et de visite.
Amis confrères, si vous avez un client pour lequel ce bien peut correspondre, appelez moi et nous organiserons une visite avec plaisir.
Pour toutes visites, je me tiens à votre disposition
Honoraires de 290 € TTC à la charge du locataire. Loyer de base 770 €/mois. Provision sur charges 20 €/mois, régularisation annuelle. Dépôt de garantie 770 €. Classe énergie C, Classe climat A Montant moyen estimé des dépenses annuelles d'énergie pour un usage standard, établi à partir des prix de l'énergie de l'année 2021 : entre 730.00 et 988.00 €. Les informations sur les risques auxquels ce bien est exposé sont disponibles sur le site Géorisques : georisques.gouv.fr.
Carte pro. CPI n° 1602 2020 000 000 001
AC ADC n° 1602 2021 000 140 579
Bien présenté par Agences de France par délégation.
Agences de France - SIREN : 899413603 - Titulaire de la carte T : 29012021000000009 non habilité à percevoir des fonds
À propos du prix
Loyer (charges comprises)
Frais d'agence estimés pour un appartement d’une surface moyenne (72 m²) dans votre zone de recherche.
Ces honoraires correspondent à maximum 11 € du mètre carré (état des lieux inclus) tel que défini dans la loi Alur.
Les + de cette location
Découvrez votre quartier
Cognac (16100)
Diagnostic de Performance Énergétique
Diagnostic de Performance Énergétique : C
Le Diagnostic de Performance Énergétique (DPE) indique la consommation d'énergie d'un logement et son impact en termes d'émissions de gaz à effet de serre.
La note va de A (logement très économe) à G (logement très énergivore).
Cette information vous aide à estimer vos futures dépenses d'énergie et l'impact environnemental du logement.
| Note | Consommation (kWh/m²/an) | Description |
|---|---|---|
| A | ≤ 70 | Logement très économe |
| B | 71 à 110 | Logement économe |
| C | 111 à 180 | Logement assez économe |
| D | 181 à 250 | Logement moyen |
| E | 251 à 330 | Logement peu économe |
| F | 331 à 420 | Logement énergivore |
| G | ≥ 421 | Logement très énergivore |
Émission de Gaz à Effet de Serre : NA
L’indicateur GES (Gaz à Effet de Serre) mesure la quantité de gaz à effet de serre émise par le logement, principalement liée au chauffage, à l’eau chaude et à la production d’énergie.
La note va de A (peu d’émissions) à G (fortes émissions).
Cette information vous permet d’évaluer l’impact environnemental du logement.
| Note | Émission (kg CO²/m²/an) | Description |
|---|---|---|
| A | ≤ 6 | Faible émission de GES |
| B | 7 à 11 | Émission modérée de GES |
| C | 12 à 30 | Émission moyenne de GES |
| D | 31 à 50 | Émission assez élevée de GES |
| E | 51 à 70 | Émission élevée de GES |
| F | 71 à 100 | Émission très élevée de GES |
| G | ≥ 101 | Forte émission de GES |