Location appartement T3 aux Angles
Description de l'appartement
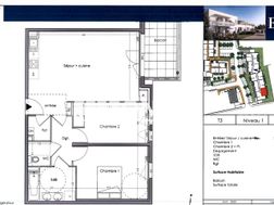
À Louer : Appartement T3 Neuf dans Résidence TER NATURANous sommes ravis de vous présenter ce superbe appartement neuf de type 3, actuellement en phase finale de construction avec une livraison prévue pour fin mars.Niché au sein de la résidence moderne TER NATURA, ce logement offre un cadre de vie contemporain et fonctionnel. Dès l'entrée, vous apprécierez l'espace de rangement intégré qui vous accueille. Un cellier pratique complète les nombreux atouts de cet appartement, vous offrant un espace de stockage supplémentaire.Le cœur de ce bien est sans conteste son espace de vie ouvert et lumineux. La cuisine, parfaitement équipée avec plaques de cuisson et hotte aspirante, s'ouvre harmonieusement sur le séjour. Cet ensemble convivial se prolonge naturellement vers l'extérieur grâce à une agréable terrasse, idéale pour profiter des beaux jours.L'espace nuit comprend deux chambres confortables, dont l'une est dotée d'un placard intégré. Une salle de bains fonctionnelle, avec un emplacement prévu pour votre machine à laver, ainsi qu'un WC séparé complètent ce bien.Pour votre confort quotidien, l'appartement bénéficie d'un système de chauffage et d'eau chaude individuels alimentés par une chaudière à gaz, vous garantissant autonomie et maîtrise de votre consommation énergétique.Une place de parking extérieure est incluse avec la location, vous assurant un stationnement pratique et sécurisé.Ne manquez pas cette opportunité de devenir le premier occupant de ce logement neuf alliant confort moderne et praticité au quotidien
À propos du prix
Loyer (charges comprises)
Frais d'agence estimés pour un appartement d’une surface moyenne (64 m²) dans votre zone de recherche.
Ces honoraires correspondent à maximum 13 € du mètre carré (état des lieux inclus) tel que défini dans la loi Alur.
Les + de cette location
Découvrez votre quartier
Les Angles (30133)
Diagnostic de Performance Énergétique
Diagnostic de Performance Énergétique : NA
Le Diagnostic de Performance Énergétique (DPE) indique la consommation d'énergie d'un logement et son impact en termes d'émissions de gaz à effet de serre.
La note va de A (logement très économe) à G (logement très énergivore).
Cette information vous aide à estimer vos futures dépenses d'énergie et l'impact environnemental du logement.
| Note | Consommation (kWh/m²/an) | Description |
|---|---|---|
| A | ≤ 70 | Logement très économe |
| B | 71 à 110 | Logement économe |
| C | 111 à 180 | Logement assez économe |
| D | 181 à 250 | Logement moyen |
| E | 251 à 330 | Logement peu économe |
| F | 331 à 420 | Logement énergivore |
| G | ≥ 421 | Logement très énergivore |
Émission de Gaz à Effet de Serre : NA
L’indicateur GES (Gaz à Effet de Serre) mesure la quantité de gaz à effet de serre émise par le logement, principalement liée au chauffage, à l’eau chaude et à la production d’énergie.
La note va de A (peu d’émissions) à G (fortes émissions).
Cette information vous permet d’évaluer l’impact environnemental du logement.
| Note | Émission (kg CO²/m²/an) | Description |
|---|---|---|
| A | ≤ 6 | Faible émission de GES |
| B | 7 à 11 | Émission modérée de GES |
| C | 12 à 30 | Émission moyenne de GES |
| D | 31 à 50 | Émission assez élevée de GES |
| E | 51 à 70 | Émission élevée de GES |
| F | 71 à 100 | Émission très élevée de GES |
| G | ≥ 101 | Forte émission de GES |