Location appartement T3 avec jardin à Toulouse
Description de l'appartement
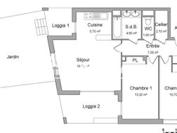
Superbe 3 pièces en rez-de-jardin avec loggias dans résidence neuveDécouvrez cet appartement 3 pièces idéalement situé en rez-de-jardin d'une résidence récente à proximité de toutes commodités. Vous serez séduit par son agencement fonctionnel qui s'articule autour d'un espace de vie principal avec séjour et cuisine ouverte, prolongé par deux loggias offrant un agréable espace extérieur.L'espace nuit comprend deux chambres confortables et une salle de bains moderne avec WC séparés. Un cellier pratique vous permet de bénéficier d'un espace de rangement supplémentaire. Pour votre confort, une place de parking en sous-sol complète ce bien, vous garantissant sécurité et praticité au quotidien.Pompe à chaleur collective Split et Convecteur Individuel electrique.N'hésitez pas à déposer votre dossier sur notre site internet Foncia au plus vite.
À propos du prix
Loyer (charges comprises)
Frais d'agence estimés pour un appartement d’une surface moyenne (63 m²) dans votre zone de recherche.
Ces honoraires correspondent à maximum 13 € du mètre carré (état des lieux inclus) tel que défini dans la loi Alur.
Les + de cette location
Découvrez votre quartier
Toulouse (31000)
Diagnostic de Performance Énergétique
Diagnostic de Performance Énergétique : NA
Le Diagnostic de Performance Énergétique (DPE) indique la consommation d'énergie d'un logement et son impact en termes d'émissions de gaz à effet de serre.
La note va de A (logement très économe) à G (logement très énergivore).
Cette information vous aide à estimer vos futures dépenses d'énergie et l'impact environnemental du logement.
| Note | Consommation (kWh/m²/an) | Description |
|---|---|---|
| A | ≤ 70 | Logement très économe |
| B | 71 à 110 | Logement économe |
| C | 111 à 180 | Logement assez économe |
| D | 181 à 250 | Logement moyen |
| E | 251 à 330 | Logement peu économe |
| F | 331 à 420 | Logement énergivore |
| G | ≥ 421 | Logement très énergivore |
Émission de Gaz à Effet de Serre : NA
L’indicateur GES (Gaz à Effet de Serre) mesure la quantité de gaz à effet de serre émise par le logement, principalement liée au chauffage, à l’eau chaude et à la production d’énergie.
La note va de A (peu d’émissions) à G (fortes émissions).
Cette information vous permet d’évaluer l’impact environnemental du logement.
| Note | Émission (kg CO²/m²/an) | Description |
|---|---|---|
| A | ≤ 6 | Faible émission de GES |
| B | 7 à 11 | Émission modérée de GES |
| C | 12 à 30 | Émission moyenne de GES |
| D | 31 à 50 | Émission assez élevée de GES |
| E | 51 à 70 | Émission élevée de GES |
| F | 71 à 100 | Émission très élevée de GES |
| G | ≥ 101 | Forte émission de GES |