Appartement T4 meublé à louer à Toulouse
Description de l'appartement
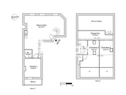
Magnifique duplex meublé avec vue sur le Canal du MidiDécouvrez ce superbe appartement en duplex entièrement meublé à neuf, niché dans un charmant immeuble ancien face à Saint-Aubin. D'une surface au sol de 85m², ce bien d'exception au style loft offre un espace de vie moderne et fonctionnel. Profitez d'une belle vue dégagée sur le Canal du Midi depuis votre balcon privatif.Au premier niveau, vous trouverez un séjour lumineux avec cuisine équipée et une chambre donnant sur le balcon. L'étage se compose de deux chambres avec placards intégrés, un espace bureau idéal pour le télétravail, une salle de bains et un WC indépendant avec lave-mains. Le confort est assuré par un double vitrage performant et un chauffage mixte gaz individuel et électrique.Idéalement situé à proximité immédiate du métro, de la gare, du marché et de tous commerces, ce bien allie parfaitement confort et praticité. Disponible immédiatement.N'hésitez pas à déposer votre dossier sur notre site internet Foncia au plus vite.
À propos du prix
Loyer (charges comprises)
Frais d'agence estimés pour un appartement d’une surface moyenne (55 m²) dans votre zone de recherche.
Ces honoraires correspondent à maximum 13 € du mètre carré (état des lieux inclus) tel que défini dans la loi Alur.
Les + de cette location
Découvrez votre quartier
Toulouse (31000)
Diagnostic de Performance Énergétique
Diagnostic de Performance Énergétique : D
Le Diagnostic de Performance Énergétique (DPE) indique la consommation d'énergie d'un logement et son impact en termes d'émissions de gaz à effet de serre.
La note va de A (logement très économe) à G (logement très énergivore).
Cette information vous aide à estimer vos futures dépenses d'énergie et l'impact environnemental du logement.
| Note | Consommation (kWh/m²/an) | Description |
|---|---|---|
| A | ≤ 70 | Logement très économe |
| B | 71 à 110 | Logement économe |
| C | 111 à 180 | Logement assez économe |
| D | 181 à 250 | Logement moyen |
| E | 251 à 330 | Logement peu économe |
| F | 331 à 420 | Logement énergivore |
| G | ≥ 421 | Logement très énergivore |
Émission de Gaz à Effet de Serre : NA
L’indicateur GES (Gaz à Effet de Serre) mesure la quantité de gaz à effet de serre émise par le logement, principalement liée au chauffage, à l’eau chaude et à la production d’énergie.
La note va de A (peu d’émissions) à G (fortes émissions).
Cette information vous permet d’évaluer l’impact environnemental du logement.
| Note | Émission (kg CO²/m²/an) | Description |
|---|---|---|
| A | ≤ 6 | Faible émission de GES |
| B | 7 à 11 | Émission modérée de GES |
| C | 12 à 30 | Émission moyenne de GES |
| D | 31 à 50 | Émission assez élevée de GES |
| E | 51 à 70 | Émission élevée de GES |
| F | 71 à 100 | Émission très élevée de GES |
| G | ≥ 101 | Forte émission de GES |