Location maison F3 avec garage à St Lys
Description de la maison
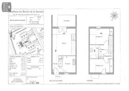
À LOUER : Charmante villa T3 située à ST LYS, dans le code postal 31470. Ce bien immobilier offre une superficie de 71 m², idéal pour un couple ou une petite famille à la recherche d'un cadre de vie agréable. Voir plus
La maison est semi-détachée d'un côté, ce qui lui confère une certaine intimité tout en bénéficiant de la proximité des commodités. Elle se compose de trois pièces, dont deux chambres spacieuses, parfaites pour accueillir vos nuits paisibles. Le salon lumineux est un espace convivial où vous pourrez vous détendre ou recevoir vos amis. La villa dispose également d'une salle de bain fonctionnelle, répondant à tous vos besoins quotidiens.
Côté confort, le chauffage est individuel, avec un système électrique par radiateurs, garantissant une chaleur agréable durant les mois les plus frais. Vous apprécierez également le patio, un espace extérieur idéal pour profiter des journées ensoleillées ou organiser des barbecues en famille.
Pour votre stationnement, cette villa est dotée d'un garage ainsi qu'une place de parking, vous offrant ainsi une solution pratique pour vos véhicules. Située dans un environnement calme, cette maison ne fait pas partie d'un lotissement, ce qui vous permettra de profiter d'une tranquillité appréciable.
N'attendez plus pour visiter cette villa qui allie confort et praticité, et qui saura répondre à vos attentes en matière de logement.
Pour plus d'informations : Johana MANDAGARAN : 06.09.87.30.14.
Loyer de 786,18 euros par mois charges comprises dont 28,00 euros par mois de provision pour charges (soumis à la régularisation annuelle).
Soit avec Assurance Habitation et Assistance* ( 24.00 euros ) : 810,18 euros.
Les honoraires charge locataire sont de 788,04 euros ( soit 11,00 euros/m² ) dont 214,92 euros pour état des lieux ( soit 3,00 euros/m² ).
Vous pouvez consulter les barèmes d'honoraires à l'adresse suivante :
https://www.citya.com/agences-immobilieres/toulouse-31555/504#bareme-location
Montant estimé des dépenses annuelles d'énergie pour un usage standard : entre 859 et 1 163 euros. Prix moyens des énergies indexés en 2021. Les informations sur les risques auxquels ce bien est exposé sont disponibles sur le site Géorisques : https://www.georisques.gouv.fr. *Service facultatif. Contribution annuelle "attentats" non comprise. Voir conditions en agence.
À propos du prix
Loyer (charges comprises)
Frais d'agence estimés pour une maison d’une surface moyenne (71 m²) dans votre zone de recherche.
Ces honoraires correspondent à maximum 11 € du mètre carré (état des lieux inclus) tel que défini dans la loi Alur.
Les + de cette location
Découvrez votre quartier
Saint-Lys (31470)
Diagnostic de Performance Énergétique
Diagnostic de Performance Énergétique : C
Le Diagnostic de Performance Énergétique (DPE) indique la consommation d'énergie d'un logement et son impact en termes d'émissions de gaz à effet de serre.
La note va de A (logement très économe) à G (logement très énergivore).
Cette information vous aide à estimer vos futures dépenses d'énergie et l'impact environnemental du logement.
| Note | Consommation (kWh/m²/an) | Description |
|---|---|---|
| A | ≤ 70 | Logement très économe |
| B | 71 à 110 | Logement économe |
| C | 111 à 180 | Logement assez économe |
| D | 181 à 250 | Logement moyen |
| E | 251 à 330 | Logement peu économe |
| F | 331 à 420 | Logement énergivore |
| G | ≥ 421 | Logement très énergivore |
Émission de Gaz à Effet de Serre : NA
L’indicateur GES (Gaz à Effet de Serre) mesure la quantité de gaz à effet de serre émise par le logement, principalement liée au chauffage, à l’eau chaude et à la production d’énergie.
La note va de A (peu d’émissions) à G (fortes émissions).
Cette information vous permet d’évaluer l’impact environnemental du logement.
| Note | Émission (kg CO²/m²/an) | Description |
|---|---|---|
| A | ≤ 6 | Faible émission de GES |
| B | 7 à 11 | Émission modérée de GES |
| C | 12 à 30 | Émission moyenne de GES |
| D | 31 à 50 | Émission assez élevée de GES |
| E | 51 à 70 | Émission élevée de GES |
| F | 71 à 100 | Émission très élevée de GES |
| G | ≥ 101 | Forte émission de GES |