Location appartement T3 à Neuilly sur Seine
Description de l'appartement
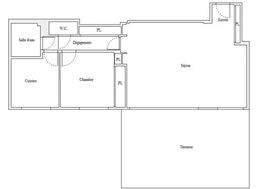
L’agence MAXIME DESPÈRES vous propose dans le quartier Bagatelle, à deux pas de la Fondation Louis Vuitton, avec un accès immédiat au bois de Boulogne, un appartement de trois pièces avec terrasse privative de 34m². D’une superficie de 65,71 m², cet appartement loué vide refait à neuf exposé Est et avec vue sur les espaces verts se compose: d'une entrée, d'un double séjour ouvrant sur la terrasse, d'une cuisine indépendante entièrement équipée, d'une chambre avec rangements, d'une salle d’eau et d'un WC séparé.
Une cave complète ce bien.
Pour un bail soumis au Code civil (résidence secondaire, logement de fonction, bail société) : 12 % HT du loyer annuel à la charge du locataire. Dépôt de garantie: 4 260€.
Pour un bail de résidence principale (Loi ALUR du 24 mars 2014)
12.10€ TTC/m² pour la visite, la constitution du dossier et la rédaction du bail. État des lieux : effectué par huissier de justice, 50 % à la charge du locataire. Dépôt de garantie: 2 130€.
À propos du prix
Loyer (charges comprises)
Frais d'agence estimés pour un appartement d’une surface moyenne (66 m²) dans votre zone de recherche.
Ces honoraires correspondent à maximum 15 € du mètre carré (état des lieux inclus) tel que défini dans la loi Alur.
Les + de cette location
Découvrez votre quartier
Neuilly-sur-Seine (92200)
Diagnostic de Performance Énergétique
Diagnostic de Performance Énergétique : D
Le Diagnostic de Performance Énergétique (DPE) indique la consommation d'énergie d'un logement et son impact en termes d'émissions de gaz à effet de serre.
La note va de A (logement très économe) à G (logement très énergivore).
Cette information vous aide à estimer vos futures dépenses d'énergie et l'impact environnemental du logement.
| Note | Consommation (kWh/m²/an) | Description |
|---|---|---|
| A | ≤ 70 | Logement très économe |
| B | 71 à 110 | Logement économe |
| C | 111 à 180 | Logement assez économe |
| D | 181 à 250 | Logement moyen |
| E | 251 à 330 | Logement peu économe |
| F | 331 à 420 | Logement énergivore |
| G | ≥ 421 | Logement très énergivore |
Émission de Gaz à Effet de Serre : NA
L’indicateur GES (Gaz à Effet de Serre) mesure la quantité de gaz à effet de serre émise par le logement, principalement liée au chauffage, à l’eau chaude et à la production d’énergie.
La note va de A (peu d’émissions) à G (fortes émissions).
Cette information vous permet d’évaluer l’impact environnemental du logement.
| Note | Émission (kg CO²/m²/an) | Description |
|---|---|---|
| A | ≤ 6 | Faible émission de GES |
| B | 7 à 11 | Émission modérée de GES |
| C | 12 à 30 | Émission moyenne de GES |
| D | 31 à 50 | Émission assez élevée de GES |
| E | 51 à 70 | Émission élevée de GES |
| F | 71 à 100 | Émission très élevée de GES |
| G | ≥ 101 | Forte émission de GES |