Location appartement T2 meublé à Grenoble
Description de l'appartement
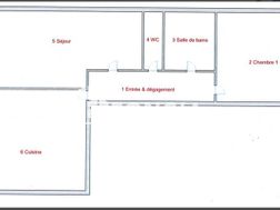
Au coeur de Grenoble, au 1 Boulevard Edouard Rey, dans un immeuble de bon standing, un superbe et grand 2 Pièces + Cuisine meublé de 57.54 M2, en très bon état, situé au 3ᵉ étage avec ascenseur avec jolie vue sur la Bastille et sur l'Isère.Vous bénéficierez d'un appartement clair, très confortable, meublé avec gout, et particulièrement bien équipé.Un hall avec rangement dessert une cuisine équipée de meubles haut et bas, plaque de cuisson, four, hotte, lave vaisselle, réfrigérateur. et lave linge Tous les ustensiles de cuisine et appareils ménagers utiles à la vie de tous les jours sont laissés à votre disposition.Vous disposerez d'un joli salon/séjour donnant sur un balcon coté montagne et Isère. Tous les éléments disponibles ont été disposés pour votre confort table, chaises, canapé, table basse, télévision à écran plat, éléments de décoration.Le logement est doté d'une chambre coté cour avec un lit deux places avec couette, oreiller, bureau, meubles de rangement.Enfin, vous accéderez à une belle salle de bains avec baignoire, paroi de douche, vasque sur meuble, miroir avec bandeau lumineux, machine à laver le linge, meuble de rangement.Le wc est séparé de la salle de bains.Le chauffage ainsi que l'eau chaude sont collectifs, inclus dans les charges.
À propos du prix
Loyer (charges comprises)
Frais d'agence estimés pour un appartement d’une surface moyenne (57 m²) dans votre zone de recherche.
Ces honoraires correspondent à maximum 13 € du mètre carré (état des lieux inclus) tel que défini dans la loi Alur.
Les + de cette location
Découvrez votre quartier
Grenoble (38000)
Diagnostic de Performance Énergétique
Diagnostic de Performance Énergétique : E
Le Diagnostic de Performance Énergétique (DPE) indique la consommation d'énergie d'un logement et son impact en termes d'émissions de gaz à effet de serre.
La note va de A (logement très économe) à G (logement très énergivore).
Cette information vous aide à estimer vos futures dépenses d'énergie et l'impact environnemental du logement.
| Note | Consommation (kWh/m²/an) | Description |
|---|---|---|
| A | ≤ 70 | Logement très économe |
| B | 71 à 110 | Logement économe |
| C | 111 à 180 | Logement assez économe |
| D | 181 à 250 | Logement moyen |
| E | 251 à 330 | Logement peu économe |
| F | 331 à 420 | Logement énergivore |
| G | ≥ 421 | Logement très énergivore |
Émission de Gaz à Effet de Serre : NA
L’indicateur GES (Gaz à Effet de Serre) mesure la quantité de gaz à effet de serre émise par le logement, principalement liée au chauffage, à l’eau chaude et à la production d’énergie.
La note va de A (peu d’émissions) à G (fortes émissions).
Cette information vous permet d’évaluer l’impact environnemental du logement.
| Note | Émission (kg CO²/m²/an) | Description |
|---|---|---|
| A | ≤ 6 | Faible émission de GES |
| B | 7 à 11 | Émission modérée de GES |
| C | 12 à 30 | Émission moyenne de GES |
| D | 31 à 50 | Émission assez élevée de GES |
| E | 51 à 70 | Émission élevée de GES |
| F | 71 à 100 | Émission très élevée de GES |
| G | ≥ 101 | Forte émission de GES |