Chambre en colocation à St Étienne
Description de la chambre de Madame G.
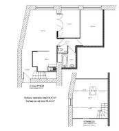
Idéalement située à moins de 5mn à pied des lignes de tramway 1 et 2 (arrêts Anatole France ou Campus Tréfilerie), Chambre de 8,57 m2 composé d'un lit, un bureau, un placard et un portant dans un appartement T3 de 78.32 m2 au sol (68.40 carrez) dans un immeuble situé 12 rue Jules Simon.
Loyer 200 € L'appartement est au 2ème et dernier étage donnant sur cour très tranquille, très lumineux par ces grandes fenêtres. La pièce commune de 35 m2 avec cuisine ouverte entièrement équipée (plaque de cuisson, four, réfrigérateur congélateur, lave-vaisselle, micro-ondes…), un coin salle à manger et un coin salon cosy. Une salle d'eau avec machine à laver, un WC indépendant.
Garantie VISALE demandée. Provision de 80 € par mois et par chambre en plus pour les charges (électricité, eau, chau?age par le gaz, entretien chaudière, taxe ordures
ménagères et charges de copropriété).
À propos du prix
Loyer (charges comprises)
Charges locatives
Montant du dépôt de garantie
Honoraires
Frais d'agence estimés pour une chambre d’une surface moyenne (9 m²) dans votre zone de recherche.
Ces honoraires correspondent à maximum 13 € du mètre carré (état des lieux inclus) tel que défini dans la loi Alur.
Les + de cette location
Découvrez votre quartier
Saint-Étienne (42000)
Diagnostic de Performance Énergétique
Diagnostic de Performance Énergétique : D

Le Diagnostic de Performance Énergétique (DPE) indique la consommation d'énergie d'un logement et son impact en termes d'émissions de gaz à effet de serre.
La note va de A (logement très économe) à G (logement très énergivore).
Cette information vous aide à estimer vos futures dépenses d'énergie et l'impact environnemental du logement.
Note | Consommation (kWh/m²/an) | Description |
---|---|---|
A | ≤ 70 | Logement très économe |
B | 71 à 110 | Logement économe |
C | 111 à 180 | Logement assez économe |
D | 181 à 250 | Logement moyen |
E | 251 à 330 | Logement peu économe |
F | 331 à 420 | Logement énergivore |
G | ≥ 421 | Logement très énergivore |
Émission de Gaz à Effet de Serre : D

L’indicateur GES (Gaz à Effet de Serre) mesure la quantité de gaz à effet de serre émise par le logement, principalement liée au chauffage, à l’eau chaude et à la production d’énergie.
La note va de A (peu d’émissions) à G (fortes émissions).
Cette information vous permet d’évaluer l’impact environnemental du logement.
Note | Émission (kg CO²/m²/an) | Description |
---|---|---|
A | ≤ 6 | Faible émission de GES |
B | 7 à 11 | Émission modérée de GES |
C | 12 à 30 | Émission moyenne de GES |
D | 31 à 50 | Émission assez élevée de GES |
E | 51 à 70 | Émission élevée de GES |
F | 71 à 100 | Émission très élevée de GES |
G | ≥ 101 | Forte émission de GES |