Location appartement T2 avec jardin à Castelculier
Description de l'appartement
Loyer : 516 € par mois charges comprises
charges comprises dont - 45 € par mois de provision pour charges - régularisation annuelle Dépôt de garantie : 471 € Honoraires charge locataire : 496 € TTC dont - 135 € TTC pour état des lieux À louer -Beau T2 avec terrasse et grand jardin -Castelculier
Situé dans une résidence calme et sécurisée, ce T2 en rez-de-chaussée offre un cadre de vie idéal à proximité immédiate de l'école primaire de Castelculier, de la salle des fêtes municipale ainsi que des transports et des commodités du village.
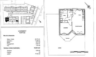
Le logement
D'une surface habitable de 44,68 m², ce T2 se compose de :
-Un séjour lumineux avec cuisine ouverte (22,78 m²)
-Une chambre confortable de 11,09 m²
-Une salle de bain fonctionnelle (6,31 m²) et d'un wc séparé
Le séjour ouvre sur une terrasse de 6,49 m² donnant accès à un grand jardin privatif de 77,35 m², parfait pour profiter de l'extérieur en toute tranquillité.
Louez un logement avec Elyade et bénéficiez gratuitement pendant 12 mois d'ALLOLILY, le service de conciergerie privée accessible à tous (sans obligation de souscription) !
Pour plus d'informations, contactez notre agence.
VISITES ET RESERVATIONS - 09.72.391.390* (*Appel non surtaxé)
Les informations sur les risques auxquels ce bien est exposé sont disponibles sur le site Géorisques : www.georisques.gouv.fr
À propos du prix
Loyer (charges comprises)
Frais d'agence estimés pour un appartement d’une surface moyenne (44 m²) dans votre zone de recherche.
Ces honoraires correspondent à maximum 13 € du mètre carré (état des lieux inclus) tel que défini dans la loi Alur.
Les + de cette location
Découvrez votre quartier
Castelculier (47240)
Diagnostic de Performance Énergétique
Diagnostic de Performance Énergétique : D
Le Diagnostic de Performance Énergétique (DPE) indique la consommation d'énergie d'un logement et son impact en termes d'émissions de gaz à effet de serre.
La note va de A (logement très économe) à G (logement très énergivore).
Cette information vous aide à estimer vos futures dépenses d'énergie et l'impact environnemental du logement.
| Note | Consommation (kWh/m²/an) | Description |
|---|---|---|
| A | ≤ 70 | Logement très économe |
| B | 71 à 110 | Logement économe |
| C | 111 à 180 | Logement assez économe |
| D | 181 à 250 | Logement moyen |
| E | 251 à 330 | Logement peu économe |
| F | 331 à 420 | Logement énergivore |
| G | ≥ 421 | Logement très énergivore |
Émission de Gaz à Effet de Serre : NA
L’indicateur GES (Gaz à Effet de Serre) mesure la quantité de gaz à effet de serre émise par le logement, principalement liée au chauffage, à l’eau chaude et à la production d’énergie.
La note va de A (peu d’émissions) à G (fortes émissions).
Cette information vous permet d’évaluer l’impact environnemental du logement.
| Note | Émission (kg CO²/m²/an) | Description |
|---|---|---|
| A | ≤ 6 | Faible émission de GES |
| B | 7 à 11 | Émission modérée de GES |
| C | 12 à 30 | Émission moyenne de GES |
| D | 31 à 50 | Émission assez élevée de GES |
| E | 51 à 70 | Émission élevée de GES |
| F | 71 à 100 | Émission très élevée de GES |
| G | ≥ 101 | Forte émission de GES |