Appartement T3 à louer à St Jean Pied de Port
Description de l'appartement
Loyer : 730 € par mois charges comprises
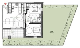
charges comprises dont - 80 € par mois de provision pour charges - régularisation annuelle Dépôt de garantie : 690 € Honoraires charge locataire : 549 € TTC Appartement en rez-de-chaussée avec deux chambres à louer dans une résidence neuve à deux pas des commodités sur la commune de Saint-Jean-Pied-de-Port. Ce bien possède une entrée avec des rangements desservant une belle pièce de vie avec un coin cuisine, un cellier, une salle d'eau avec un wc et deux chambres. La pièce de vie a un accès vers une terrasse et un jardinet d'environ 90 m2. Une place de parking accompagne le tout. Disponible début juillet.
À propos du prix
Loyer (charges comprises)
Frais d'agence estimés pour un appartement d’une surface moyenne (61 m²) dans votre zone de recherche.
Ces honoraires correspondent à maximum 11 € du mètre carré (état des lieux inclus) tel que défini dans la loi Alur.
Les + de cette location
Découvrez votre quartier
Saint-Jean-Pied-de-Port (64220)
Diagnostic de Performance Énergétique
Diagnostic de Performance Énergétique : A
Le Diagnostic de Performance Énergétique (DPE) indique la consommation d'énergie d'un logement et son impact en termes d'émissions de gaz à effet de serre.
La note va de A (logement très économe) à G (logement très énergivore).
Cette information vous aide à estimer vos futures dépenses d'énergie et l'impact environnemental du logement.
| Note | Consommation (kWh/m²/an) | Description |
|---|---|---|
| A | ≤ 70 | Logement très économe |
| B | 71 à 110 | Logement économe |
| C | 111 à 180 | Logement assez économe |
| D | 181 à 250 | Logement moyen |
| E | 251 à 330 | Logement peu économe |
| F | 331 à 420 | Logement énergivore |
| G | ≥ 421 | Logement très énergivore |
Émission de Gaz à Effet de Serre : NA
L’indicateur GES (Gaz à Effet de Serre) mesure la quantité de gaz à effet de serre émise par le logement, principalement liée au chauffage, à l’eau chaude et à la production d’énergie.
La note va de A (peu d’émissions) à G (fortes émissions).
Cette information vous permet d’évaluer l’impact environnemental du logement.
| Note | Émission (kg CO²/m²/an) | Description |
|---|---|---|
| A | ≤ 6 | Faible émission de GES |
| B | 7 à 11 | Émission modérée de GES |
| C | 12 à 30 | Émission moyenne de GES |
| D | 31 à 50 | Émission assez élevée de GES |
| E | 51 à 70 | Émission élevée de GES |
| F | 71 à 100 | Émission très élevée de GES |
| G | ≥ 101 | Forte émission de GES |