Location appartement T4 à Anse
Description de l'appartement
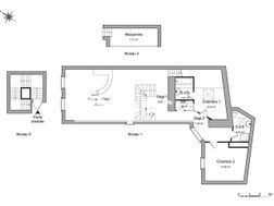
A louer situé 11 rue du Château. Situé au cœur du centre historique de la ville d?Anse, au sein d?un charmant immeuble bien entretenu, cet appartement spacieux offre un cadre de vie agréable mêlant cachet et confort. Il se compose d?un bel espace de vie avec séjour convivial et cuisine équipée, ainsi que d?un espace nuit comprenant trois chambres. Deux salles de bains et des WC complètent ce bien, idéal pour une famille ou une colocation de qualité. Un appartement lumineux et fonctionnel, bénéficiant d?un emplacement privilégié à proximité immédiate des commerces et commodités du centre-ville. DIsponible le 01/03
À propos du prix
Loyer (charges comprises)
Frais d'agence estimés pour un appartement d’une surface moyenne (87 m²) dans votre zone de recherche.
Ces honoraires correspondent à maximum 13 € du mètre carré (état des lieux inclus) tel que défini dans la loi Alur.
Découvrez votre quartier
Anse (69480)
Diagnostic de Performance Énergétique
Diagnostic de Performance Énergétique : D
Le Diagnostic de Performance Énergétique (DPE) indique la consommation d'énergie d'un logement et son impact en termes d'émissions de gaz à effet de serre.
La note va de A (logement très économe) à G (logement très énergivore).
Cette information vous aide à estimer vos futures dépenses d'énergie et l'impact environnemental du logement.
| Note | Consommation (kWh/m²/an) | Description |
|---|---|---|
| A | ≤ 70 | Logement très économe |
| B | 71 à 110 | Logement économe |
| C | 111 à 180 | Logement assez économe |
| D | 181 à 250 | Logement moyen |
| E | 251 à 330 | Logement peu économe |
| F | 331 à 420 | Logement énergivore |
| G | ≥ 421 | Logement très énergivore |
Émission de Gaz à Effet de Serre : NA
L’indicateur GES (Gaz à Effet de Serre) mesure la quantité de gaz à effet de serre émise par le logement, principalement liée au chauffage, à l’eau chaude et à la production d’énergie.
La note va de A (peu d’émissions) à G (fortes émissions).
Cette information vous permet d’évaluer l’impact environnemental du logement.
| Note | Émission (kg CO²/m²/an) | Description |
|---|---|---|
| A | ≤ 6 | Faible émission de GES |
| B | 7 à 11 | Émission modérée de GES |
| C | 12 à 30 | Émission moyenne de GES |
| D | 31 à 50 | Émission assez élevée de GES |
| E | 51 à 70 | Émission élevée de GES |
| F | 71 à 100 | Émission très élevée de GES |
| G | ≥ 101 | Forte émission de GES |