Location appartement T2 à Chalon sur Saône entre particuliers
Description de l'appartement de Monsieur H.
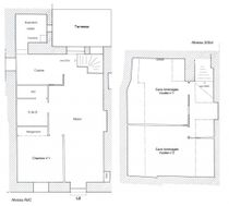
Logement T2 + 2 caves aménagées , 49 m2 habitable (91 m2 sol) + Terrasse ~8 m2, Neuf Entièrement Rénové, rdc.rn(mensuel) Loyer 646 € ** (dont rdc 458€ + s/sol 188€) - Charges 48 € rnPlein Centre de Chalon-sur-Saône, Rue de Lyon. rnUne chambre très agréable avec rangement, Grand Séjour / Salle à Manger / Cuisine de 31 m2 sol, 2 grandes caves voûtées aménagées .rnLogement confortable, de caractère, beaucoup de charme, agréable, très calme, tout confort. Chauffage individuel gaz, Double vitrage, Isolation thermique & phonique.rnPossibilité parking couvert.rnQuartier Historique, proche Hôtel de Ville, agréable, proximité écoles, commerces et restaurants, à deux pas des rues piétonnes.
À propos du prix
Loyer (charges comprises)
Charges locatives
Montant du dépôt de garantie
Honoraires
Frais d'agence estimés pour un appartement d’une surface moyenne (49 m²) dans votre zone de recherche.
Ces honoraires correspondent à maximum 13 € du mètre carré (état des lieux inclus) tel que défini dans la loi Alur.
Découvrez votre quartier
Chalon-sur-Saône (71100)
Diagnostic de Performance Énergétique
Diagnostic de Performance Énergétique : B

Le Diagnostic de Performance Énergétique (DPE) indique la consommation d'énergie d'un logement et son impact en termes d'émissions de gaz à effet de serre.
La note va de A (logement très économe) à G (logement très énergivore).
Cette information vous aide à estimer vos futures dépenses d'énergie et l'impact environnemental du logement.
Note | Consommation (kWh/m²/an) | Description |
---|---|---|
A | ≤ 70 | Logement très économe |
B | 71 à 110 | Logement économe |
C | 111 à 180 | Logement assez économe |
D | 181 à 250 | Logement moyen |
E | 251 à 330 | Logement peu économe |
F | 331 à 420 | Logement énergivore |
G | ≥ 421 | Logement très énergivore |
Émission de Gaz à Effet de Serre : D

L’indicateur GES (Gaz à Effet de Serre) mesure la quantité de gaz à effet de serre émise par le logement, principalement liée au chauffage, à l’eau chaude et à la production d’énergie.
La note va de A (peu d’émissions) à G (fortes émissions).
Cette information vous permet d’évaluer l’impact environnemental du logement.
Note | Émission (kg CO²/m²/an) | Description |
---|---|---|
A | ≤ 6 | Faible émission de GES |
B | 7 à 11 | Émission modérée de GES |
C | 12 à 30 | Émission moyenne de GES |
D | 31 à 50 | Émission assez élevée de GES |
E | 51 à 70 | Émission élevée de GES |
F | 71 à 100 | Émission très élevée de GES |
G | ≥ 101 | Forte émission de GES |