Location appartement T4 meublé avec cuisine équipée à Melun sans frais d'agence
Description de l'appartement de Monsieur M.
Très belle appartement (style maison avec belle terrasse de 95m² + un jardin d'environ 110 m²) lumineux de 87 m² avec vue sur Seine à louer en colocation dans le centre-ville de Melun, dans une résidence privée et sécurisée. La chambre 2 est à louer.
L'appartement se situe au « boulevard Aristid Briand» à proximité de tout commerce, des écoles/universités (école de la gendarmerie de Melun/Université Panthéon-Assas/Lycée Saint Aspais/Lycée Jacques Amyot) et de la gare.
Composition et Informations :
L'appartement, est meublé et a été entièrement rénové.
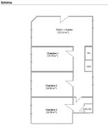
Total pièces : 4
3 chambres équipées d'environ 13m² à 15m²
Salon et cuisine américaine d'environ 23m²
Pour les chambres 1 et 2 : 1 douche et 1 toilette en commun
Pour la chambre 3 : douche et toilette privative
Terrasse de 95m²
Jardin de 110m²
Lignes train : RER R (train direct : Melun- Paris) : 20-25min
RER D
À propos du prix
Loyer (charges comprises)
Charges locatives
Montant du dépôt de garantie
Honoraires
Frais d'agence estimés pour un appartement d’une surface moyenne (85 m²) dans votre zone de recherche.
Ces honoraires correspondent à maximum 15 € du mètre carré (état des lieux inclus) tel que défini dans la loi Alur.
Les + de cette location
Découvrez votre quartier
Melun (77000)
Diagnostic de Performance Énergétique
Diagnostic de Performance Énergétique : E

Le Diagnostic de Performance Énergétique (DPE) indique la consommation d'énergie d'un logement et son impact en termes d'émissions de gaz à effet de serre.
La note va de A (logement très économe) à G (logement très énergivore).
Cette information vous aide à estimer vos futures dépenses d'énergie et l'impact environnemental du logement.
Note | Consommation (kWh/m²/an) | Description |
---|---|---|
A | ≤ 70 | Logement très économe |
B | 71 à 110 | Logement économe |
C | 111 à 180 | Logement assez économe |
D | 181 à 250 | Logement moyen |
E | 251 à 330 | Logement peu économe |
F | 331 à 420 | Logement énergivore |
G | ≥ 421 | Logement très énergivore |
Émission de Gaz à Effet de Serre : C

L’indicateur GES (Gaz à Effet de Serre) mesure la quantité de gaz à effet de serre émise par le logement, principalement liée au chauffage, à l’eau chaude et à la production d’énergie.
La note va de A (peu d’émissions) à G (fortes émissions).
Cette information vous permet d’évaluer l’impact environnemental du logement.
Note | Émission (kg CO²/m²/an) | Description |
---|---|---|
A | ≤ 6 | Faible émission de GES |
B | 7 à 11 | Émission modérée de GES |
C | 12 à 30 | Émission moyenne de GES |
D | 31 à 50 | Émission assez élevée de GES |
E | 51 à 70 | Émission élevée de GES |
F | 71 à 100 | Émission très élevée de GES |
G | ≥ 101 | Forte émission de GES |