Location appartement T3 à Albi
Description de l'appartement
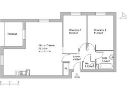
Quartier de la Madeleine, dans une résidence securisée, appartement de type 3, avec jardin privatif non clos et une place de parking.Le logement comprend une entrée, une cuisine ouverte sur la pièce de vie, deux chambres et une salle de bain.
À propos du prix
Loyer (charges comprises)
Frais d'agence estimés pour un appartement d’une surface moyenne (63 m²) dans votre zone de recherche.
Ces honoraires correspondent à maximum 13 € du mètre carré (état des lieux inclus) tel que défini dans la loi Alur.
Les + de cette location
Découvrez votre quartier
Albi (81000)
Diagnostic de Performance Énergétique
Diagnostic de Performance Énergétique : D
Le Diagnostic de Performance Énergétique (DPE) indique la consommation d'énergie d'un logement et son impact en termes d'émissions de gaz à effet de serre.
La note va de A (logement très économe) à G (logement très énergivore).
Cette information vous aide à estimer vos futures dépenses d'énergie et l'impact environnemental du logement.
| Note | Consommation (kWh/m²/an) | Description |
|---|---|---|
| A | ≤ 70 | Logement très économe |
| B | 71 à 110 | Logement économe |
| C | 111 à 180 | Logement assez économe |
| D | 181 à 250 | Logement moyen |
| E | 251 à 330 | Logement peu économe |
| F | 331 à 420 | Logement énergivore |
| G | ≥ 421 | Logement très énergivore |
Émission de Gaz à Effet de Serre : NA
L’indicateur GES (Gaz à Effet de Serre) mesure la quantité de gaz à effet de serre émise par le logement, principalement liée au chauffage, à l’eau chaude et à la production d’énergie.
La note va de A (peu d’émissions) à G (fortes émissions).
Cette information vous permet d’évaluer l’impact environnemental du logement.
| Note | Émission (kg CO²/m²/an) | Description |
|---|---|---|
| A | ≤ 6 | Faible émission de GES |
| B | 7 à 11 | Émission modérée de GES |
| C | 12 à 30 | Émission moyenne de GES |
| D | 31 à 50 | Émission assez élevée de GES |
| E | 51 à 70 | Émission élevée de GES |
| F | 71 à 100 | Émission très élevée de GES |
| G | ≥ 101 | Forte émission de GES |