Appartement T2 à louer à La Seyne sur Mer
Description de l'appartement
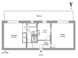
LOCATION 100% EN LIGNE VIA FONCIA.COM - Visualisez le bien comme si vous y étiez grâce à notre visite virtuelle réalisée le 09/02/2026À louer, agréable T2 rénové de 47 m² situé au 1ᵉʳ étage sans ascenseur d?une résidence bien entretenue et particulièrement calme.L?appartement s?ouvre sur un hall d?entrée qui distribue harmonieusement les espaces. Sur la droite, vous découvrez un séjour lumineux en face, une cuisine indépendante et sur la gauche, l?espace nuit.La partie nuit comprend une salle de bains disposant d?un aménagement prévu pour l?installation d?un lave-linge, un WC indépendant, ainsi qu?une grande chambre de 16 m² équipée de deux vastes placards aménagés.Véritable atout du logement, un grand balcon exposé Sud-Est s?étend sur toute la longueur de l?appartement. Accessible depuis trois pièces, il offre une jolie vue dégagée et apporte une belle luminosité tout au long de la journéeUne cave privative ainsi qu?une place de parking privée complètent le logement, avec la possibilité de louer une seconde place en supplément.Le bien dispose de fenêtres en double-vitrage, il est situé à mi-chemin entre le quartier Portes Marines et Tamaris à proximité immédiate des commerces, des transports en communs (navette martime incluse) et des écoles.L'eau chaude et l'eau froide sont incluse dans les charges, les chauffages sont électriques et individuels.Cette location vous intéresse ? N?attendez pas pour déposer votre dossier de candidature en ligne sur le site www.foncia.com / Rubrique Location / indiquez la ville recherchée / filtrer « loc 100% en ligne ». A très vite sur foncia.com !
À propos du prix
Loyer (charges comprises)
Frais d'agence estimés pour un appartement d’une surface moyenne (48 m²) dans votre zone de recherche.
Ces honoraires correspondent à maximum 15 € du mètre carré (état des lieux inclus) tel que défini dans la loi Alur.
Les + de cette location
Découvrez votre quartier
La Seyne-sur-Mer (83500)
Diagnostic de Performance Énergétique
Diagnostic de Performance Énergétique : E
Le Diagnostic de Performance Énergétique (DPE) indique la consommation d'énergie d'un logement et son impact en termes d'émissions de gaz à effet de serre.
La note va de A (logement très économe) à G (logement très énergivore).
Cette information vous aide à estimer vos futures dépenses d'énergie et l'impact environnemental du logement.
| Note | Consommation (kWh/m²/an) | Description |
|---|---|---|
| A | ≤ 70 | Logement très économe |
| B | 71 à 110 | Logement économe |
| C | 111 à 180 | Logement assez économe |
| D | 181 à 250 | Logement moyen |
| E | 251 à 330 | Logement peu économe |
| F | 331 à 420 | Logement énergivore |
| G | ≥ 421 | Logement très énergivore |
Émission de Gaz à Effet de Serre : NA
L’indicateur GES (Gaz à Effet de Serre) mesure la quantité de gaz à effet de serre émise par le logement, principalement liée au chauffage, à l’eau chaude et à la production d’énergie.
La note va de A (peu d’émissions) à G (fortes émissions).
Cette information vous permet d’évaluer l’impact environnemental du logement.
| Note | Émission (kg CO²/m²/an) | Description |
|---|---|---|
| A | ≤ 6 | Faible émission de GES |
| B | 7 à 11 | Émission modérée de GES |
| C | 12 à 30 | Émission moyenne de GES |
| D | 31 à 50 | Émission assez élevée de GES |
| E | 51 à 70 | Émission élevée de GES |
| F | 71 à 100 | Émission très élevée de GES |
| G | ≥ 101 | Forte émission de GES |