Location appartement T4 à Versailles
Description de l'appartement
Venez découvrir ce logement lors des JOURNEE PORTES OUVERTES : 11/04/2026.
1 place de parking en plus Offerte.
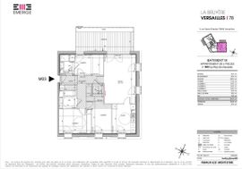
Exceptionnel T4 avec terrasse de 20 m2 sans vis à vis dans résidence neuve arborée
Découvrez ce magnifique appartement de 96 m² en première occupation dans une résidence BBC à Montreuil. Ce bien d'exception à triple exposition vous offre 1 terrasse de 20 m2, créant de véritable espace de vie extérieur pour profiter pleinement du cadre verdoyant.
L'espace de vie s'articule autour d'une pièce principale fonctionnelle de 26 m² prolongée par une cuisine équipée séparée de 11 m2, créant un lieu convivial et chaleureux. Côté nuit, 3 chambres de 13, 12 et 10 m² avec placards offrent des espaces nuit confortables et bien dimensionnés. Dont 1 chambre avec sa salle d'eau attenante. Les finitions haut de gamme incluent parquet massif, carrelage en grès émaillé, thermostat d'ambiance et fibre optique. Niché dans un véritable écrin de verdure avec parc paysager, cet appartement bénéficie d'un emplacement privilégié à seulement 5 minutes à pied du Parc du Domaine de Mme Elisabeth et à 15 minutes de la gare de Montreuil. Les arrêts de bus à proximité et l'accès facile aux grands axes routiers (A13, A10, A86) facilitent tous vos déplacements. Je reste à votre disposition pour toutes informations complémentaires.
À propos du prix
Loyer (charges comprises)
Frais d'agence estimés pour un appartement d’une surface moyenne (96 m²) dans votre zone de recherche.
Ces honoraires correspondent à maximum 15 € du mètre carré (état des lieux inclus) tel que défini dans la loi Alur.
Les + de cette location
Découvrez votre quartier
Versailles (78000)
Diagnostic de Performance Énergétique
Diagnostic de Performance Énergétique : C
Le Diagnostic de Performance Énergétique (DPE) indique la consommation d'énergie d'un logement et son impact en termes d'émissions de gaz à effet de serre.
La note va de A (logement très économe) à G (logement très énergivore).
Cette information vous aide à estimer vos futures dépenses d'énergie et l'impact environnemental du logement.
| Note | Consommation (kWh/m²/an) | Description |
|---|---|---|
| A | ≤ 70 | Logement très économe |
| B | 71 à 110 | Logement économe |
| C | 111 à 180 | Logement assez économe |
| D | 181 à 250 | Logement moyen |
| E | 251 à 330 | Logement peu économe |
| F | 331 à 420 | Logement énergivore |
| G | ≥ 421 | Logement très énergivore |
Émission de Gaz à Effet de Serre : NA
L’indicateur GES (Gaz à Effet de Serre) mesure la quantité de gaz à effet de serre émise par le logement, principalement liée au chauffage, à l’eau chaude et à la production d’énergie.
La note va de A (peu d’émissions) à G (fortes émissions).
Cette information vous permet d’évaluer l’impact environnemental du logement.
| Note | Émission (kg CO²/m²/an) | Description |
|---|---|---|
| A | ≤ 6 | Faible émission de GES |
| B | 7 à 11 | Émission modérée de GES |
| C | 12 à 30 | Émission moyenne de GES |
| D | 31 à 50 | Émission assez élevée de GES |
| E | 51 à 70 | Émission élevée de GES |
| F | 71 à 100 | Émission très élevée de GES |
| G | ≥ 101 | Forte émission de GES |