Appartement T1 meublé à louer à Nantes sans frais d'agence
Description de l'appartement de Monsieur R.
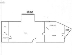
Nantes à louer un Appartement T1, MEUBLE, dans petite copropriété, au 3ème et dernier étage, sans ascenseur.
Surface de 31m², comprenant :
- Pièce de vie de 17m² avec canapé, tables et chaises, armoire, commode, lit double
- Cuisine équipée avec table de cuisson, four, frigo, meubles de rangement et table, débarras attenant avec lave-linge et étagères
- Salle de bain
- WC séparé
Chauffage et eau chaude par chaudière gaz individuelle.
Petit jardin collectif.
Stationnement libre dans la rue.
TRAM et bus à proximité (5min à pied)
Bail de 1 an, renouvelable.
Caution : 1 mois de loyer
Charges 45€/mois comprenant : eau froide, entretien des espaces communs, taxe ordures ménagères, contrat entretien chaudière.
À propos du prix
Loyer (charges comprises)
Charges locatives
Montant du dépôt de garantie
Honoraires
Frais d'agence estimés pour un appartement d’une surface moyenne (31 m²) dans votre zone de recherche.
Ces honoraires correspondent à maximum 13 € du mètre carré (état des lieux inclus) tel que défini dans la loi Alur.
Découvrez votre quartier
Nantes (44000)
Diagnostic de Performance Énergétique
Diagnostic de Performance Énergétique : D

Le Diagnostic de Performance Énergétique (DPE) indique la consommation d'énergie d'un logement et son impact en termes d'émissions de gaz à effet de serre.
La note va de A (logement très économe) à G (logement très énergivore).
Cette information vous aide à estimer vos futures dépenses d'énergie et l'impact environnemental du logement.
Note | Consommation (kWh/m²/an) | Description |
---|---|---|
A | ≤ 70 | Logement très économe |
B | 71 à 110 | Logement économe |
C | 111 à 180 | Logement assez économe |
D | 181 à 250 | Logement moyen |
E | 251 à 330 | Logement peu économe |
F | 331 à 420 | Logement énergivore |
G | ≥ 421 | Logement très énergivore |
Émission de Gaz à Effet de Serre : NA

L’indicateur GES (Gaz à Effet de Serre) mesure la quantité de gaz à effet de serre émise par le logement, principalement liée au chauffage, à l’eau chaude et à la production d’énergie.
La note va de A (peu d’émissions) à G (fortes émissions).
Cette information vous permet d’évaluer l’impact environnemental du logement.
Note | Émission (kg CO²/m²/an) | Description |
---|---|---|
A | ≤ 6 | Faible émission de GES |
B | 7 à 11 | Émission modérée de GES |
C | 12 à 30 | Émission moyenne de GES |
D | 31 à 50 | Émission assez élevée de GES |
E | 51 à 70 | Émission élevée de GES |
F | 71 à 100 | Émission très élevée de GES |
G | ≥ 101 | Forte émission de GES |