Maison F5 avec jardin à louer aux Ponts de Cé
Description de la maison
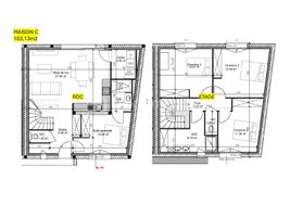
Aux portes d'Angers, venez découvrir cette maison en fin de construction . Livraison constructeur prévue au 1er MAI 2026. Cette maison de 103,13m2 est composée au RDC d'une pièce de vie avec cuisine aménagée équipée ( électroménager présent : hotte , plaque induction), une suite parentale avec salle d'eau et un WC indépendant. A l'étage, 3 chambres ainsi qu'une salle d'eau et un wc indépendant. Un jardin avec terrasse et pelouse synthétique et 2 places de parking privatives complètent ce bien. Un local vélos commun à 3 maisons dans la cour. Chauffage au sol via Pompe à chaleur. La cour sera en bitume drainant à la charge du propriétaire. Les charges comprennent l'entretien annuel de la pompe à chaleur. Le tri des ordures ménagères pourra être en sus à réception de la taxe foncière au propriétaire. Avant toute demande de visite ou de code d'accès à la visite virtuelle , je vous invite à constituer votre dossier de solvabilité sur le lien suivant : https://app.zelok.fr/preinscription?code-agence=MGL1848 . ATTENTION : AUCUNE visite ne sera effectué sans un dossier complet et validé. L'étude thermique ( = DPE) sera disponible en fin de construction mais prévue en A Loyer : 1350 Hors charges / Charges : 27€50 ( entretien PAC) / Honoraires de location : 825€04 Cette annonce référence 328487 vous est présentée par votre agent commercial BSK Immobilier HALIMA PERRINELLE (EI) immatriculé au RSAC de ANGERS (49000) sous le numéro 85141821000015. Honoraires à la charge du locataire : 825,04 € - 12€ TTC le M2 Zone très tendue : le département de Paris (75) et certaines communes des Yvelines (78), des Hauts-de-Seine (92), de Seine-Saint-Denis (93), du Val de Marne (94) et du Val d’Oise (95) (il s’agit des territoires de la zone A bis, au sens de l’article R. 304-1 du CCH et listés par l’arrêté du 1.8.14 : JO du 6.8.14) - 10€ TTC le M2 Zone tendue : les territoires soumis à l’encadrement des loyers et pour lesquels s’applique la taxe sur les logements vacants, à l’exclusion des communes de la zone très tendue (ces territoires sont listés par le décret n° 2013-392 du 10.5.13) - 8€ TTC le m2 Hors zone tendue : Pour le reste du territoire et les DOM-TOM. Avance sur charges mensuelles incluses : 27,50 € Dépôt de garantie : 1 350,00 € Non soumis au DPE. Les informations sur les risques auxquels ce bien est exposé sont disponibles sur le site Géorisques : www.georisques.gouv.fr
À propos du prix
Loyer (charges comprises)
Frais d'agence estimés pour une maison d’une surface moyenne (103 m²) dans votre zone de recherche.
Ces honoraires correspondent à maximum 13 € du mètre carré (état des lieux inclus) tel que défini dans la loi Alur.
Les + de cette location
Découvrez votre quartier
Les Ponts-de-Cé (49130)
Diagnostic de Performance Énergétique
Diagnostic de Performance Énergétique : NA
Le Diagnostic de Performance Énergétique (DPE) indique la consommation d'énergie d'un logement et son impact en termes d'émissions de gaz à effet de serre.
La note va de A (logement très économe) à G (logement très énergivore).
Cette information vous aide à estimer vos futures dépenses d'énergie et l'impact environnemental du logement.
| Note | Consommation (kWh/m²/an) | Description |
|---|---|---|
| A | ≤ 70 | Logement très économe |
| B | 71 à 110 | Logement économe |
| C | 111 à 180 | Logement assez économe |
| D | 181 à 250 | Logement moyen |
| E | 251 à 330 | Logement peu économe |
| F | 331 à 420 | Logement énergivore |
| G | ≥ 421 | Logement très énergivore |
Émission de Gaz à Effet de Serre : NA
L’indicateur GES (Gaz à Effet de Serre) mesure la quantité de gaz à effet de serre émise par le logement, principalement liée au chauffage, à l’eau chaude et à la production d’énergie.
La note va de A (peu d’émissions) à G (fortes émissions).
Cette information vous permet d’évaluer l’impact environnemental du logement.
| Note | Émission (kg CO²/m²/an) | Description |
|---|---|---|
| A | ≤ 6 | Faible émission de GES |
| B | 7 à 11 | Émission modérée de GES |
| C | 12 à 30 | Émission moyenne de GES |
| D | 31 à 50 | Émission assez élevée de GES |
| E | 51 à 70 | Émission élevée de GES |
| F | 71 à 100 | Émission très élevée de GES |
| G | ≥ 101 | Forte émission de GES |