Location appartement T4 à Bagnolet
Description de l'appartement
EXCLUSIVITÉ - APPARTEMENT 4 PIÈCES /1 - 5 RUE PIERRE ET MARIE CURIE 93170 BAGNOLET
En location : à BAGNOLET (93170) découvrez cet appartement de 4 pièces de 70,82 m².
Il est situé dans une résidence avec ascenseur livrée en juin 2023. Voir plus
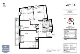
Cet appartement situé au 6ème étage offre une vue dégagée sur les alentours et comporte un séjour de 21 m², trois chambres, une cuisine aménagée et une salle de bains avec WC séparés. Un chauffage collectif fonctionnant au gaz est installé dans l'immeuble.
Pour se détendre, ce logement comporte un balcon de 6,8 m².
Il dispose également d'une place de parking PMR de 16,5 m² située au sous-sol et d'une cave de 2,88 m².
L'appartement se trouve dans un quartier calme à proximité des commerces. Il y a tous les types d'écoles à moins de 10 minutes. A proximité des transports en commun. CAVE ET PARKING DISPONIBLE. Le bien est soumis au statut de la copropriété.
Loyer de 1 525,45 euros par mois charges comprises dont 190,00 euros par mois de provision pour charges (soumis à la régularisation annuelle).
Soit avec Assurance Habitation et Assistance* ( 27.00 euros ) : 1 552,45 euros.
Les honoraires charge locataire sont de 1 071,51 euros ( soit 15,13 euros/m² ) dont 214,59 euros pour état des lieux ( soit 3,03 euros/m² ).
Vous pouvez consulter les barèmes d'honoraires à l'adresse suivante :
https://www.citya.com/agences-immobilieres/paris-19e-arrondissement-75019/167#bareme-location
Montant estimé des dépenses annuelles d'énergie pour un usage standard : entre 363 et 492 euros. Prix moyens des énergies indexés en 2021. Zone soumise à encadrement des loyers. Le loyer de base du bien proposé est de 1 335,45 euros, le loyer de référence majoré (fixé par arrêté préfectoral) est de 1 402,236 eurosLes informations sur les risques auxquels ce bien est exposé sont disponibles sur le site Géorisques : https://www.georisques.gouv.fr. *Service facultatif. Contribution annuelle "attentats" non comprise. Voir conditions en agence.
À propos du prix
Loyer (charges comprises)
Frais d'agence estimés pour un appartement d’une surface moyenne (70 m²) dans votre zone de recherche.
Ces honoraires correspondent à maximum 15 € du mètre carré (état des lieux inclus) tel que défini dans la loi Alur.
Les + de cette location
Découvrez votre quartier
Bagnolet (93170)
Diagnostic de Performance Énergétique
Diagnostic de Performance Énergétique : C
Le Diagnostic de Performance Énergétique (DPE) indique la consommation d'énergie d'un logement et son impact en termes d'émissions de gaz à effet de serre.
La note va de A (logement très économe) à G (logement très énergivore).
Cette information vous aide à estimer vos futures dépenses d'énergie et l'impact environnemental du logement.
| Note | Consommation (kWh/m²/an) | Description |
|---|---|---|
| A | ≤ 70 | Logement très économe |
| B | 71 à 110 | Logement économe |
| C | 111 à 180 | Logement assez économe |
| D | 181 à 250 | Logement moyen |
| E | 251 à 330 | Logement peu économe |
| F | 331 à 420 | Logement énergivore |
| G | ≥ 421 | Logement très énergivore |
Émission de Gaz à Effet de Serre : NA
L’indicateur GES (Gaz à Effet de Serre) mesure la quantité de gaz à effet de serre émise par le logement, principalement liée au chauffage, à l’eau chaude et à la production d’énergie.
La note va de A (peu d’émissions) à G (fortes émissions).
Cette information vous permet d’évaluer l’impact environnemental du logement.
| Note | Émission (kg CO²/m²/an) | Description |
|---|---|---|
| A | ≤ 6 | Faible émission de GES |
| B | 7 à 11 | Émission modérée de GES |
| C | 12 à 30 | Émission moyenne de GES |
| D | 31 à 50 | Émission assez élevée de GES |
| E | 51 à 70 | Émission élevée de GES |
| F | 71 à 100 | Émission très élevée de GES |
| G | ≥ 101 | Forte émission de GES |