Appartement T2 à louer à Villejuif
Description de l'appartement
EXCLUSIVITÉ - 2 PIECES - RESIDENCE APOLLINAIRE
En location : à VILLEJUIF (94800) découvrez cet appartement de 2 pièces de 43 m².
Il est situé dans une résidence de standing, sécurisé, avec gardien et équipée d'un ascenseur. Voir plus
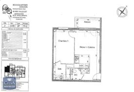
Cet appartement propose une entrée avec placard et interphone, des wc séparés, un séjour cuisine de 22 m², une chambre avec une salle de bains attenante. Et pour profiter des beaux jours, cet appartement comporte un balcon de 4,3 m².
Des photos sont à venir.
L'immeuble bénéficie d'un chauffage collectif alimenté au gaz.
L'appartement est mis en location avec une place de parking.
L'appartement se trouve dans le quartier de Louis Aragon.
Il y a plusieurs écoles (maternelles, primaires, élémentaire et collèges) à moins de 10 minutes du bien.
Côté transports en commun, on trouve la station VILLEJUIF LOUS ARAGON de ligne de métro 7 à quelques pas de l'appartement, ainsi que plusieurs lignes de bus et une ligne de tramway (T7).
Il y a aussi tout un panel de restaurants, commerces de proximité et un bureau de poste. Le bien est soumis au statut de la copropriété.
Loyer de 981,24 euros par mois charges comprises dont 140,00 euros par mois de provision pour charges (soumis à la régularisation annuelle).
Soit avec Assurance Habitation et Assistance* ( 24.00 euros ) : 1 005,24 euros.
Les honoraires charge locataire sont de 562,85 euros ( soit 13,12 euros/m² ) dont 129,99 euros pour état des lieux ( soit 3,03 euros/m² ).
Vous pouvez consulter les barèmes d'honoraires à l'adresse suivante :
https://www.citya.com/agences-immobilieres/villejuif-94800/632#bareme-location
Montant estimé des dépenses annuelles d'énergie pour un usage standard : entre 280 et 440 euros. Prix moyens des énergies indexés en 2026. Les informations sur les risques auxquels ce bien est exposé sont disponibles sur le site Géorisques : https://www.georisques.gouv.fr. *Service facultatif. Contribution annuelle "attentats" non comprise. Voir conditions en agence.
À propos du prix
Loyer (charges comprises)
Frais d'agence estimés pour un appartement d’une surface moyenne (42 m²) dans votre zone de recherche.
Ces honoraires correspondent à maximum 15 € du mètre carré (état des lieux inclus) tel que défini dans la loi Alur.
Les + de cette location
Découvrez votre quartier
Villejuif (94800)
Diagnostic de Performance Énergétique
Diagnostic de Performance Énergétique : C
Le Diagnostic de Performance Énergétique (DPE) indique la consommation d'énergie d'un logement et son impact en termes d'émissions de gaz à effet de serre.
La note va de A (logement très économe) à G (logement très énergivore).
Cette information vous aide à estimer vos futures dépenses d'énergie et l'impact environnemental du logement.
| Note | Consommation (kWh/m²/an) | Description |
|---|---|---|
| A | ≤ 70 | Logement très économe |
| B | 71 à 110 | Logement économe |
| C | 111 à 180 | Logement assez économe |
| D | 181 à 250 | Logement moyen |
| E | 251 à 330 | Logement peu économe |
| F | 331 à 420 | Logement énergivore |
| G | ≥ 421 | Logement très énergivore |
Émission de Gaz à Effet de Serre : NA
L’indicateur GES (Gaz à Effet de Serre) mesure la quantité de gaz à effet de serre émise par le logement, principalement liée au chauffage, à l’eau chaude et à la production d’énergie.
La note va de A (peu d’émissions) à G (fortes émissions).
Cette information vous permet d’évaluer l’impact environnemental du logement.
| Note | Émission (kg CO²/m²/an) | Description |
|---|---|---|
| A | ≤ 6 | Faible émission de GES |
| B | 7 à 11 | Émission modérée de GES |
| C | 12 à 30 | Émission moyenne de GES |
| D | 31 à 50 | Émission assez élevée de GES |
| E | 51 à 70 | Émission élevée de GES |
| F | 71 à 100 | Émission très élevée de GES |
| G | ≥ 101 | Forte émission de GES |