Location appartement T2 meublé proche transports à Reims de particulier à particulier
Le mot du propriétaire
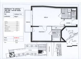
Location T2 au 4eme étage d'un immeuble récent, côté cours (au calme) Reims quartier Centre-Ville Erlon.
Résidence sécurisée, double entrée, avec ascenseur et local poubelles.
Proximité :
• Gare centre : 12min à pied, 7min Tram ou Bus.
• Bus/Tram : 30sec à pied.
• CHU : 9min voiture et 13min vélo.
• Hypercentre, proximité immédiate de tout commerce à pied.
L'appartement :
• Type : T2, 43 m², complètement équipé (pas de gaz).
• Balcon de 5m²
• Parking extérieur inclus
• Meublé avec possibilité de rajouter meubles et déco selon votre convenance
• Chauffage et chauffe-eau individuel électrique
----
DESCRIPTION détaillée :
Résidence dans la Rue de Vesle, devant tram, près tous commerces et lieux de vie.
**Très lumineux, très bon standing**
**Séjour et chambre avec balcon filant de 5m² donnant sur cour paisible.**
Grandes baies vitrées double vitrage avec volets roulants électriques, parquet, porte sur cuisine séparée & équipée (frigo+plaques cuisson électrique).
Entrée (avec grand placard intégré_portes coulissantes) desservant séjour et toilettes séparées avec lave mains.
Grande chambre connectée avec le même balcon par porte vitrée. Sol et murs chambre rénovés, travaux effectués fin 2020. Lit double 160*200. Liste exhaustive mobilier sur demande.
Salle de bain carrelée, baignoire et meuble vasque avec miroir et bandeau lumineux.
Appartement+résidence sécurisés (Digicodes, visiophone, clés+badges codées, sonnette), porte d'entrée blindée serrure trois points, oeillet.
Eau chaude par chauffe-eau individuel, chauffage électrique par radiants.
Emplacement lave-linge + sèche-linge prévus.
Murs et plafonds bonne isolation phonique et thermique. DPE décembre 2025: Classe énergie C et GES A.
4ème étage sur 5. Vue dégagée sans vis à vis. Voiture garée sur place de parking visible depuis l'appartement.
Une grande cave très saine de 7m² vient compléter ce bien, aucune humidité, ventilé et protégé incendie.
Parking sécurisé privatif interne à la résidence, avec télécommande codée.
Gare centre SNCF=12min à pied ! Tramway en bas dans la rue de Vesle.
Tout mobilier et literie neuf, propre, protégé (2023).
Loyer HC 730 €. Charges 65€.
Dépot de garantie : 1460 €
À propos du prix
Loyer (charges comprises)
Charges locatives
Montant du dépôt de garantie
Honoraires
Frais d'agence estimés pour un appartement d’une surface moyenne (43 m²) dans votre zone de recherche.
Ces honoraires correspondent à maximum 13 € du mètre carré (état des lieux inclus) tel que défini dans la loi Alur.
Les + de cette location
Découvrez votre quartier
Reims (51100)
Diagnostic de Performance Énergétique
Diagnostic de Performance Énergétique : C
Le Diagnostic de Performance Énergétique (DPE) indique la consommation d'énergie d'un logement et son impact en termes d'émissions de gaz à effet de serre.
La note va de A (logement très économe) à G (logement très énergivore).
Cette information vous aide à estimer vos futures dépenses d'énergie et l'impact environnemental du logement.
| Note | Consommation (kWh/m²/an) | Description |
|---|---|---|
| A | ≤ 70 | Logement très économe |
| B | 71 à 110 | Logement économe |
| C | 111 à 180 | Logement assez économe |
| D | 181 à 250 | Logement moyen |
| E | 251 à 330 | Logement peu économe |
| F | 331 à 420 | Logement énergivore |
| G | ≥ 421 | Logement très énergivore |
Émission de Gaz à Effet de Serre : A
L’indicateur GES (Gaz à Effet de Serre) mesure la quantité de gaz à effet de serre émise par le logement, principalement liée au chauffage, à l’eau chaude et à la production d’énergie.
La note va de A (peu d’émissions) à G (fortes émissions).
Cette information vous permet d’évaluer l’impact environnemental du logement.
| Note | Émission (kg CO²/m²/an) | Description |
|---|---|---|
| A | ≤ 6 | Faible émission de GES |
| B | 7 à 11 | Émission modérée de GES |
| C | 12 à 30 | Émission moyenne de GES |
| D | 31 à 50 | Émission assez élevée de GES |
| E | 51 à 70 | Émission élevée de GES |
| F | 71 à 100 | Émission très élevée de GES |
| G | ≥ 101 | Forte émission de GES |